START REFERENZEN KÖPFE SACHVERSTÄNDIGER IMPRESSUM
<< vorherige |  weitere >>
Gewerbe- und Industriebauten
Rothkegel Baufachhandel
Neubeu Betriebs- NL Dessau
Planung, Bauüberwachung
Rothkegel Baufachhandel GmbH
2015 - 2018
 
Autowaschpark Haßloch
Planung, Bauüberwachung
Floerchinger Waschparks GmbH & Co KG
2014 - 2018
 
Autowaschpark Borna
Waschanlage Eilenburg
Planung, Bauüberwachung
Bosch Car Service Schkeuditz
2014- 2015, 2015- 2016
 
IDT, Dachsanierung, Dessau- Tornau
Planung, Bauüberwachung
IDT Biologika GmbH
2011- 2017
 
Modernisierung Opel Autohaus Bernburg
Planung, Bauüberwachung
KfZ Brüning
2015- 2016
 
IDT, Stallgebäde Geb. 172- 174 und Sanitärtrakt, Dessau- Tornau
Planung, Bauüberwachung
IDT Biologika GmbH
2011- 2013
 
IDT, Zustandserfassung Fassaden, Dessau- Tornau
Studie
IDT Biologika GmbH
2011- 2013
 
IDT, Stabilitätenlager, Dessau- Tornau
Planung, Bauüberwachung
IDT Biologika GmbH
2011- 2013
 
Griesson de Beukelaer GmbH & Co KG, Werk Wurzen
Erweiterung Produktionshalle, diverse Technologische Einbauten
Planung, Bauüberwachung
2009- 2012
 
Neubau Arbeitsamt Dessau
Bauüberwachung
Bundesanstalt für Arbeit
1999 - 2001
 
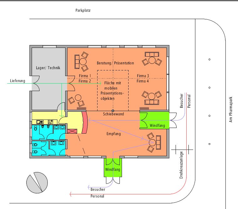
Empfangs- und Präsentationsgebäude Impfstoffwerk
Konzept
Impfstoffwerk Dessau-Tornau
2007
 
Schade-Brauerei
Hauptquartier DWG

Konzept
Dessauer Wohnungsbaugesellschaft mbH
2005
 
Dienstgebäude Landesbaubetrieb NL Ost
Ausschreibung, Bauüberwachung
WBD Industriepark GmbH
2005 - 2007
 
Maschinenfabrik Sangerhausen GmbH
Entwicklungskonzept (Industriedenkmal)
Brüning GmbH & Co. KG
1997 - 2000
 
Gutshof Saxdorf
Planung und Bauüberwachung
Güter- und Forstverwaltung Saxdorf-Lausitz
1993 - 1995
 
 
Geschäftshaus Leipziger Str. 101, Halle
Planung, Bauleitung
New Yorker, Kiel
1993 - 2000
 
Historisches Warenhaus, Halle
Planung, Bauleitung (Einzeldenkmal)
New Yorker, Kiel
2000 - 2002
 
<< vorherige |  weitere >>